- Research

Several Issues about Jiuxianqiao Residential District
- Site

Location: Jiuxianqiao Liujiefang Building 11, Chaoyang District, Beijing
To the north of the building is the 798 Art Zone and the working population is mainly young. There is good infrastructure construction here such as large shopping malls in the east. The south side of the site is easily accessible as it is close to the Dongfengbeiqiao Underground Station.
- Status and Issues
The total construction area is about 4155 square meters, and the first floor is about 1385 square meters. It has three floors.
Jiuxianqiao Liujiefang Building 11 – Elevation

Jiuxianqiao Liujiefang Building 11 – Yard 
Jiuxianqiao Liujiefang Building 11 – Shared Corridor 
Jiuxianqiao Liujiefang Building 11 – Stairs 
Jiuxianqiao Liujiefang Building 11 – Shared Kitchen
Site Issues
1. Aging of the Buildings
2. Shared Area Debris
Social Issues
1. After urbanization, the population has increased dramatically, rents and housing prices have risen, and it is difficult for young people to rent houses and buy houses in urban areas.
2. Aging population
3. The deviation of the relationship between people and people
4. The rise of big data and the Internet has made the sharing economy develop rapidly.
- Summary of renovation plan
The building renovation aims to create a new shared living concept and space business model. In this new shared living space, space becomes more flexible and space efficiency will be increased. People can also share time and space and manage and operate the community together.
Environment
· Working, living, cultural, entertainment and other community facilities
· Customized units, re-partitioning, setting different modules (such as living, entertainment, business, etc.) and distinguishing between private and public spaces
·Specific design for typical living spaces and some public spaces
Interaction of Spatial Interface
Redefining the spatial function, redefining the area and proportion between private and shared, and researching people’s right to use this space to adapt to the living needs of this era and the new social way of young people. All functions will change as people’s needs and time change.
- Relationship Between People, Activities and Time

At different times, people’s activities are different. Most people work during the day, while nights are entertainment and rest.
- Spatial Arrangement

Some spaces can change with people’s needs and time, resulting in flexible space and fixed space.
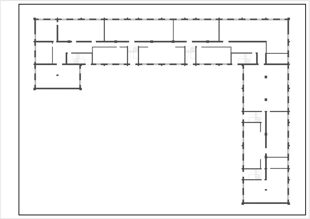
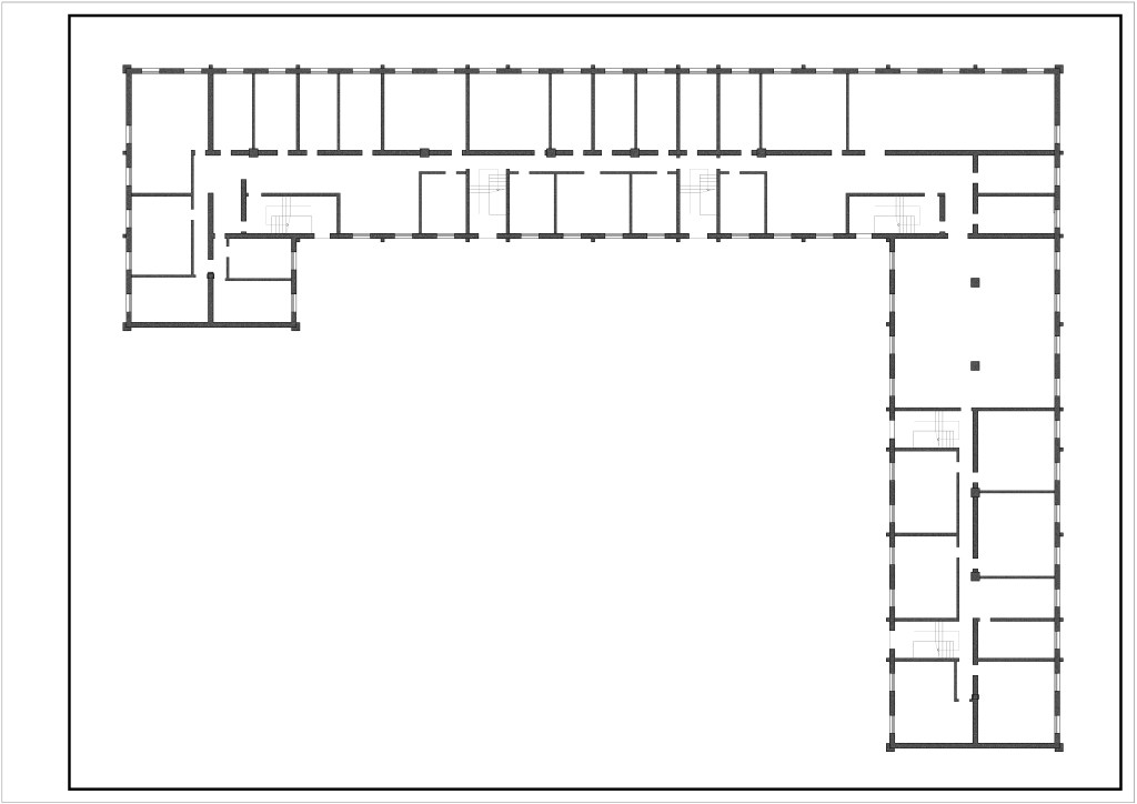
- Structure

Original Structure 
Ground Floor Structure 
First Floor Structure 
Second Floor Structure
-
- Ground Floor – Second Floor Function
Breaking the division of the original building area makes the whole building a shared living space with functions of living, entertainment and work.

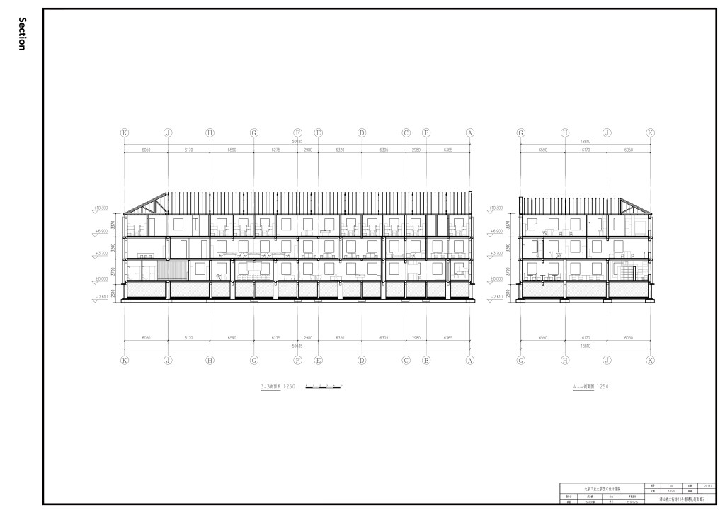
- Flown Line Analysis and Section

Section
- Axonometric Drawing

-
- Ground Floor – Entertainment Space
Looking for fixed and variable spaces in public spaces/ Meeting different needs by diversifying the indoor space/ Improving space efficiency
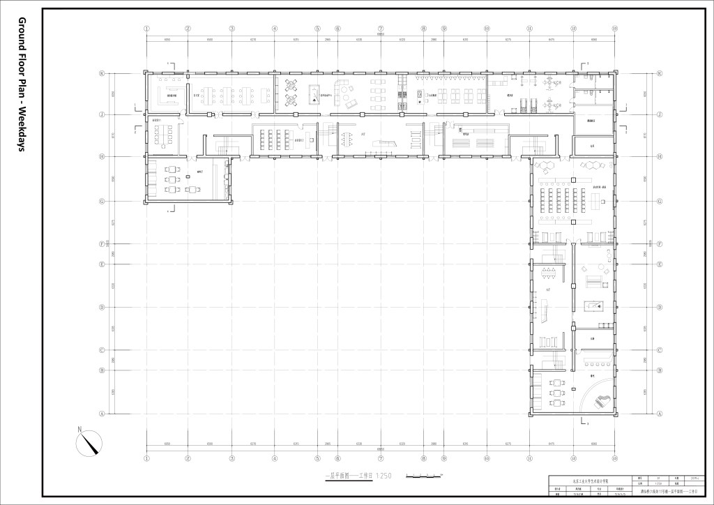
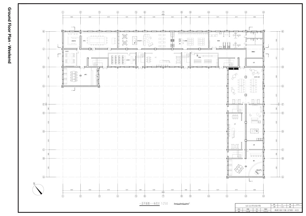
Ground Floor Plan
Part of the first floor is open to the outside world, and part of it is open to the inside, with flexible space.

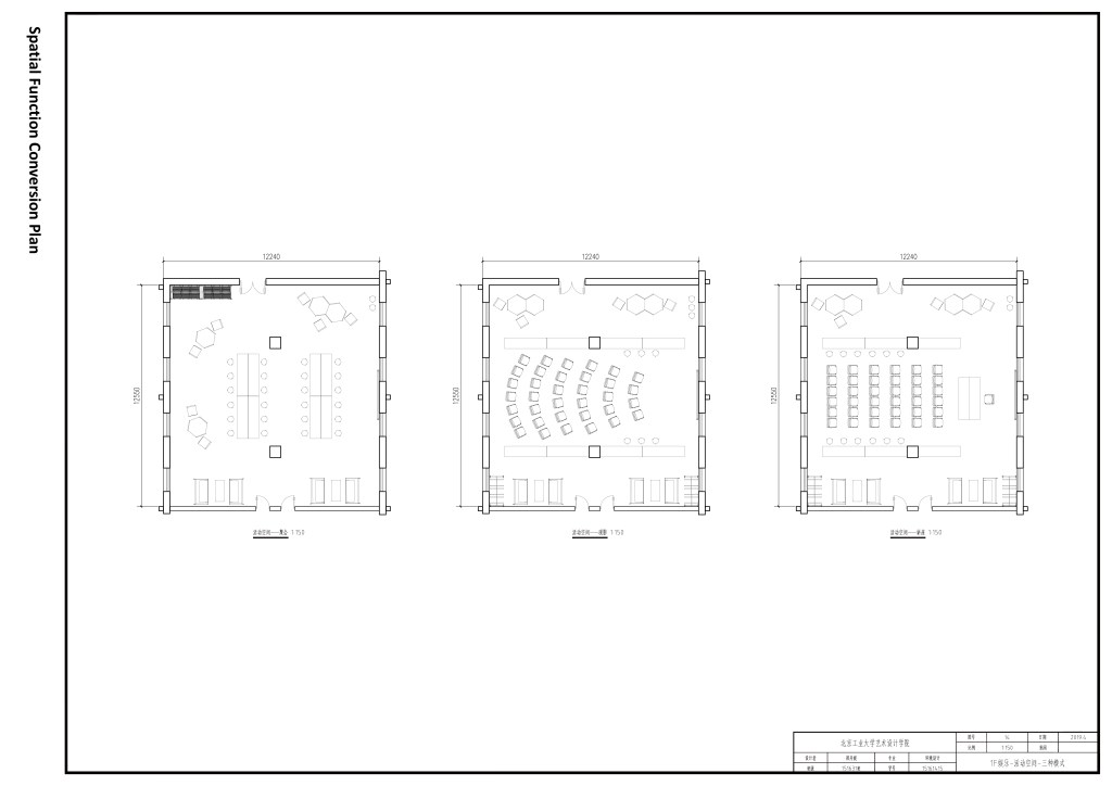
Activity Space Plan

Party 
Movie 
Lecture

Mini-Library Plan

Book Club 
Study Room 
Mini-Library

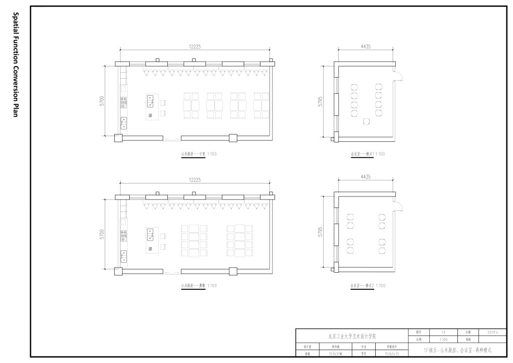
Meeting Room Plan

Mode 01 
Mode 02
-
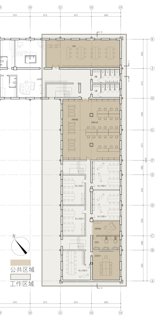
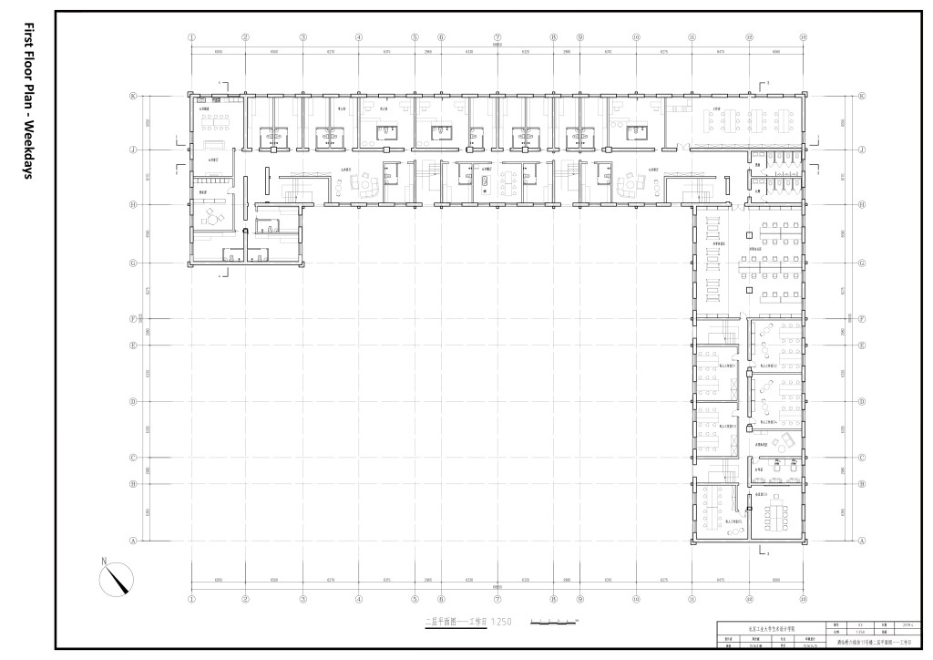
- First Floor – Office Space
Office space is mainly for freelancers and small entrepreneurial studios.
Office space is divided into open office area, private office area, meeting room, etc.
Public rest space is available to expand the shared area.

First Floor – Office Space Plan

Shared Office 
Shared Lounge Area
-
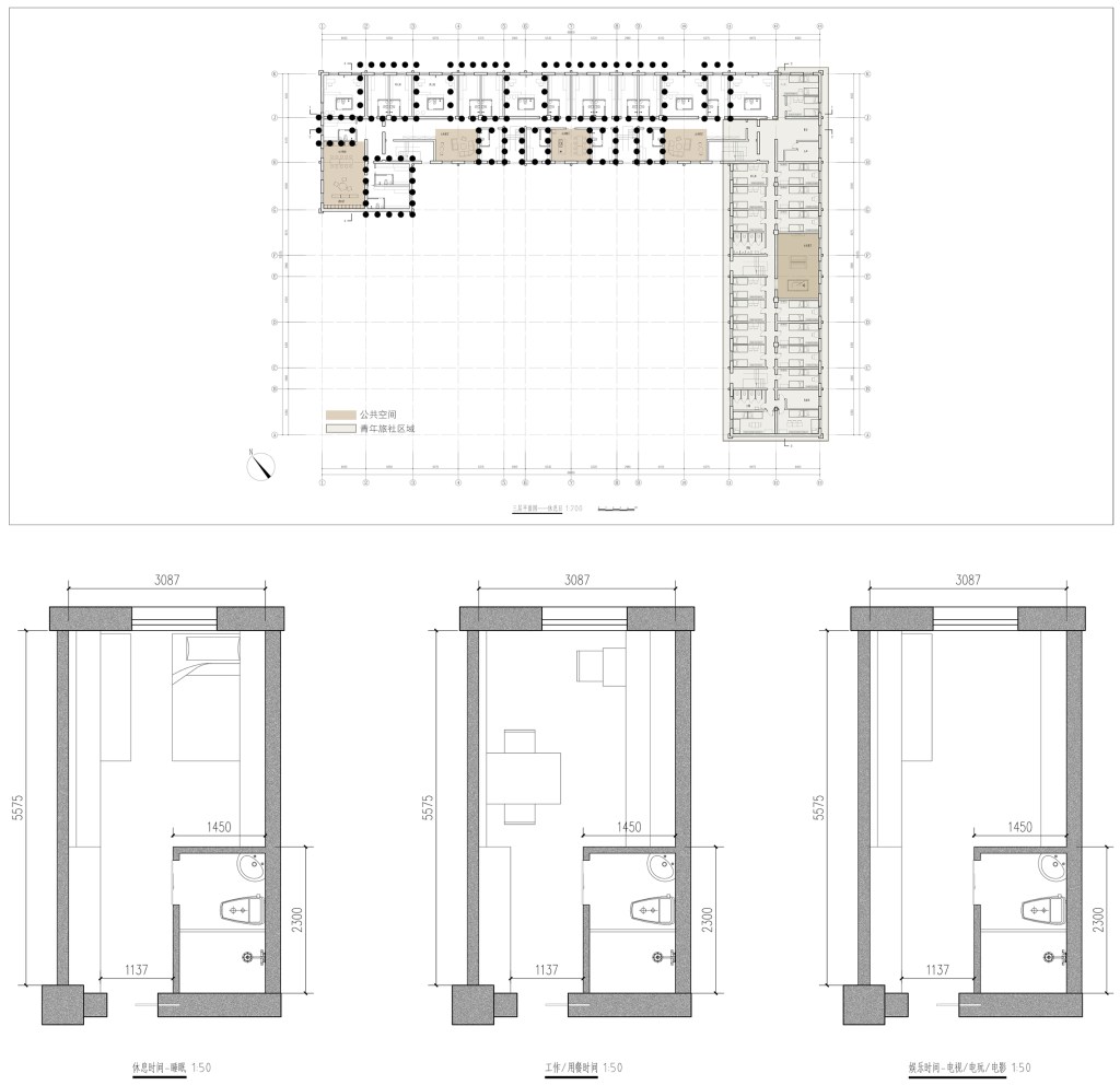
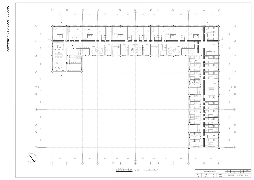
- First Floor and Second Floor – Living Space
Living – including residential and supporting public spaces, such as public kitchens, public living rooms, etc.
Influencing the functional transformation in the living space by controlling the spatial interface.
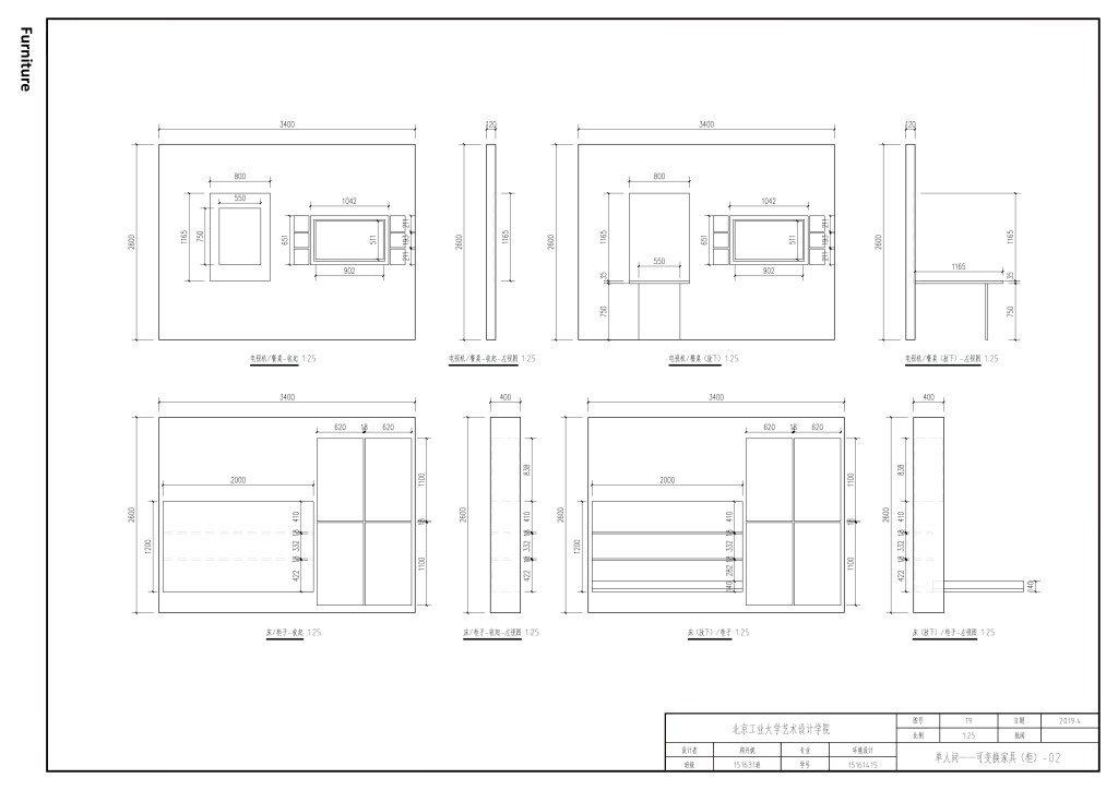
Customized furniture (multi-function cabinet) as the main component of the functional transformation of living space.
Reduce the size of the private space and expand the area of the shared area.

First Floor – Living Space 
Second Floor – Living Space

Shared Kitchen and Shared Living Room Plan 
Shared Kitchen and Shared Living Room

Single Room

Work 
Sleep 
Rest

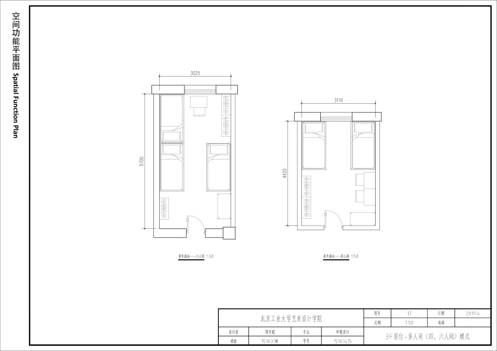
Double Room

Work 
Sleep 
Eat 
Corridor
Customized Furniture

- Model

Site Model 
Site Model and Residential Space Model

Single Room 
Single Room 
Double Room 
Unit Model
- Technical Drawings
Nov.2018 – May.2019





















